Servicios

Diseño de anteproyecto

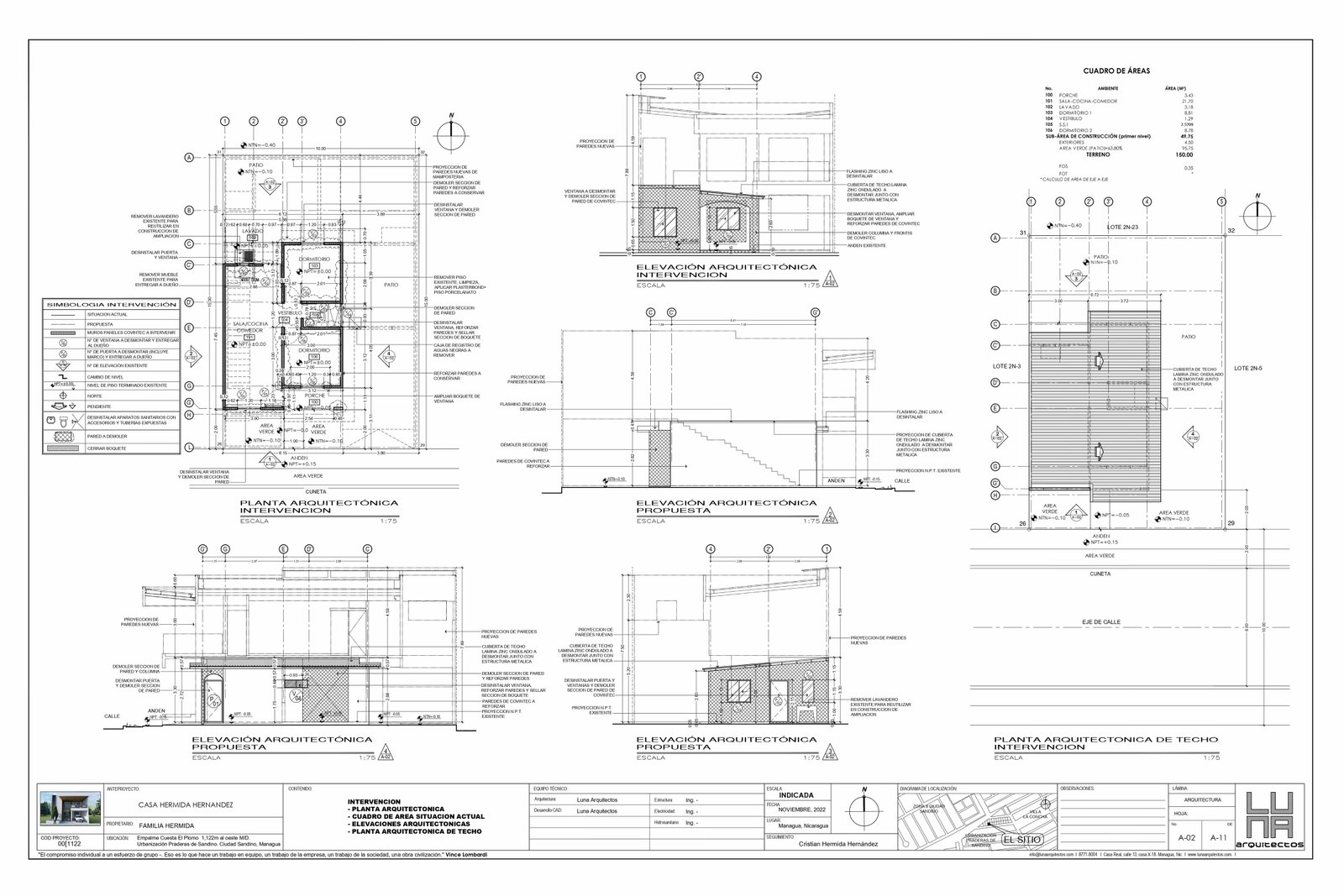
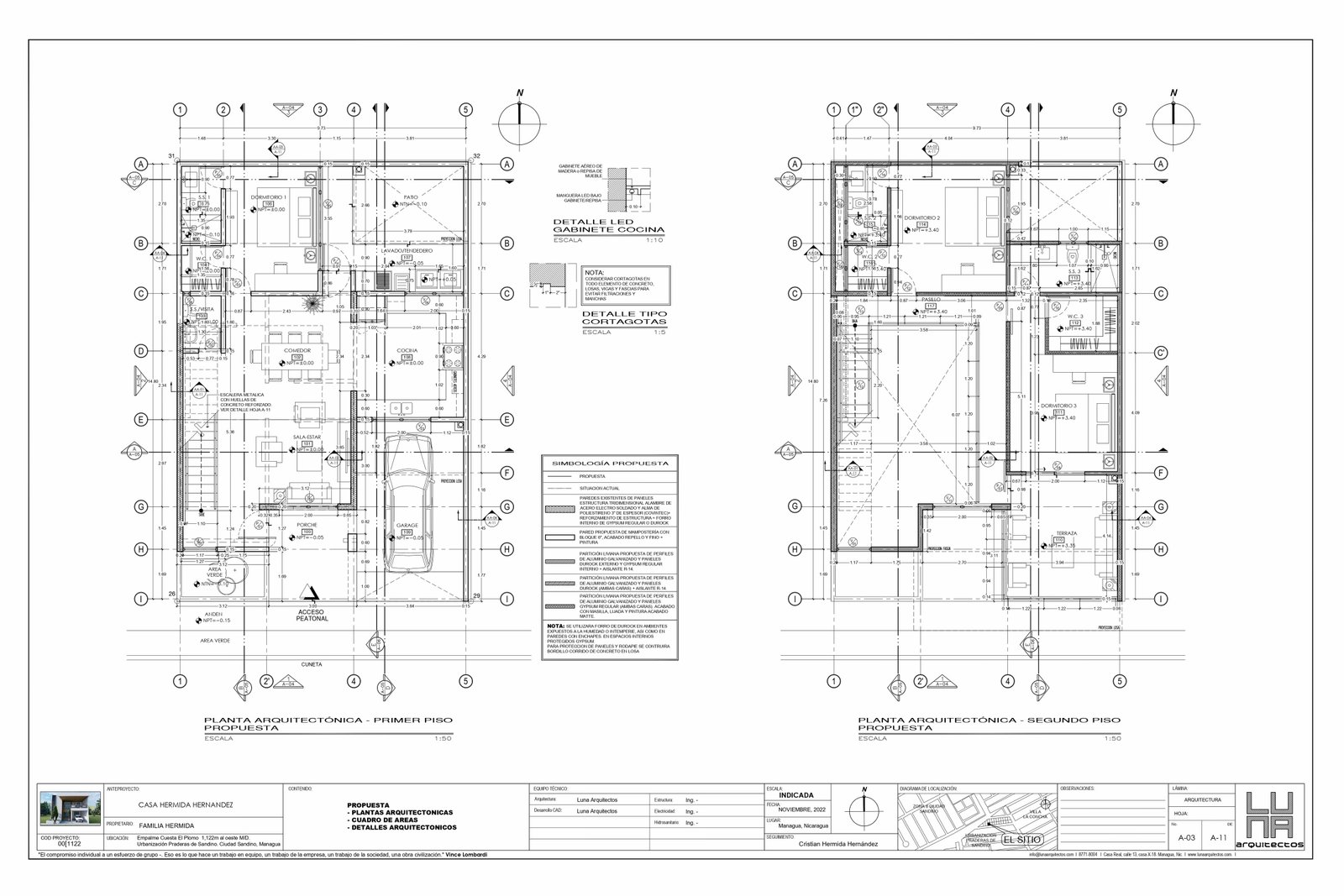
El diseño de anteproyecto está conformado por el conjunto de planos arquitectónicos que explican de forma gráfica el diseño, sus divisiones, cortes y elevaciones.

Esta etapa contiene planos arquitectónicos no constructivos, dimensiones generales y un presupuesto general no detallado.

El diseño de anteproyecto incluye:

  • Propuesta de diseño conceptual (2 revisiones)
  • Planta arquitectónica (distribución de los ambientes con sus respectivas dimensiones)
  • 4 elevaciones o fachadas arquitectónicas. Perspectivas realistas 3D
  • 2 vistas externas e internas

*No incluye detalles de construcción, no hay planos estructurales, eléctricos e hidrosanitarios. Estos planos generados no son para construir.

Imagen 1 Imagen 2 Imagen 3

CONECTA CON NOSOTROS AHORA